WONING VGH.

De opdracht voor deze nieuwbouwwoning is allesomvattend: van meubel tot tuin. De woning is gelegen op een laatste lege kavel met achteraan waardevol landschappelijk agrarisch gebied. De tuin start dan ook bewust vooraan aan de rooilijn en wil ten volle het perceel gebruiken, inclusief de zijtuinstroken.

Het interieur van de leefruimte wordt open georganiseerd langsheen de zijgevels en de achtergevel van de woning. De windowseat maakt contact met de noordelijke zijtuin die aangeplant wordt als prairietuin, de keuken communiceert met een beperkt terras in de zuidelijke zijtuin, dat uiteindelijk toegang verleend aan het grote terras achteraan de woning.

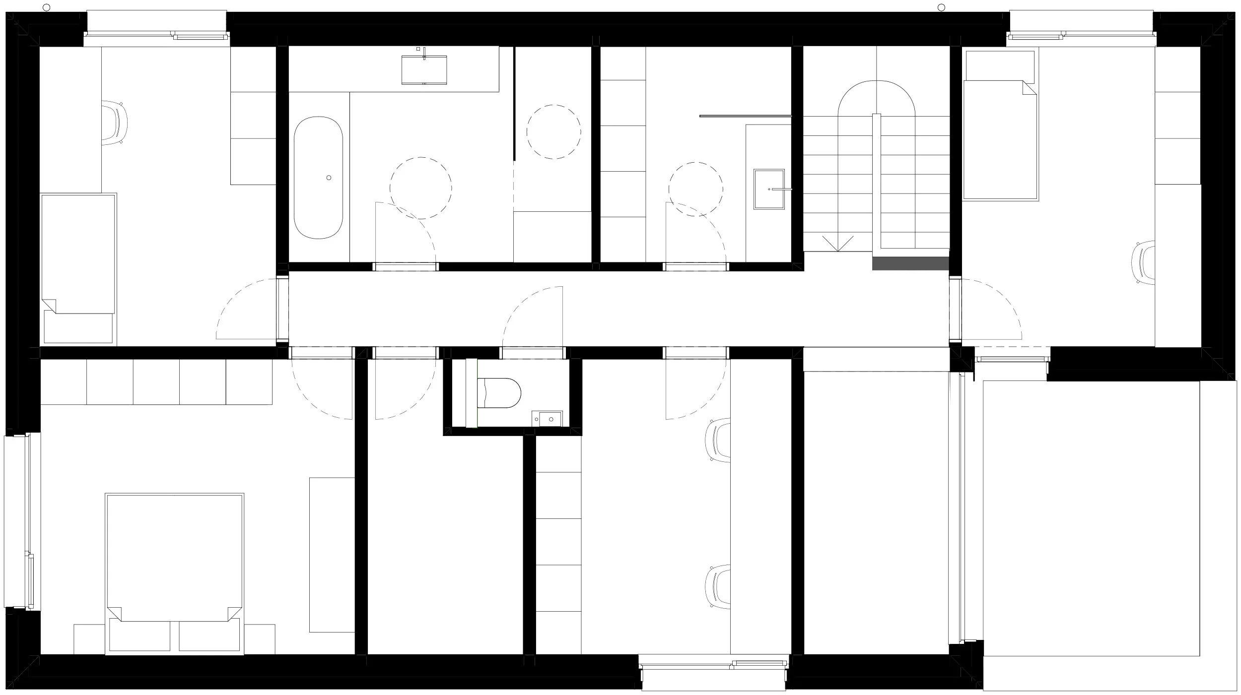
Op de verdieping zijn 3 slaapkamers en een bureauruimte functioneel geschikt langsheen een centrale gang. Het begin van deze gang maakt via een vide contact met de keuken én met het dakterras dat contact maakt met de straat.

Het gedeelte van de tuin net achteraan de woning houdt rekening met de functionele wensen van de bouwheer en loopt geleidelijk over in het natuurlijke karakter van de weilanden in het agrarisch gebied.

Mede door het compacte volume van de woning en door de juiste keuze van de bouwmaterialen is dit een energie-neutrale constructie geworden.

234_UV_nivo 0.jpg
234_UV_nivo 1.jpg

 Foto’s door Sepp Van Dun

Vorige
Vorige

woning MIPAPA

Volgende
Volgende

Woning SR